Soil Vent Pipes
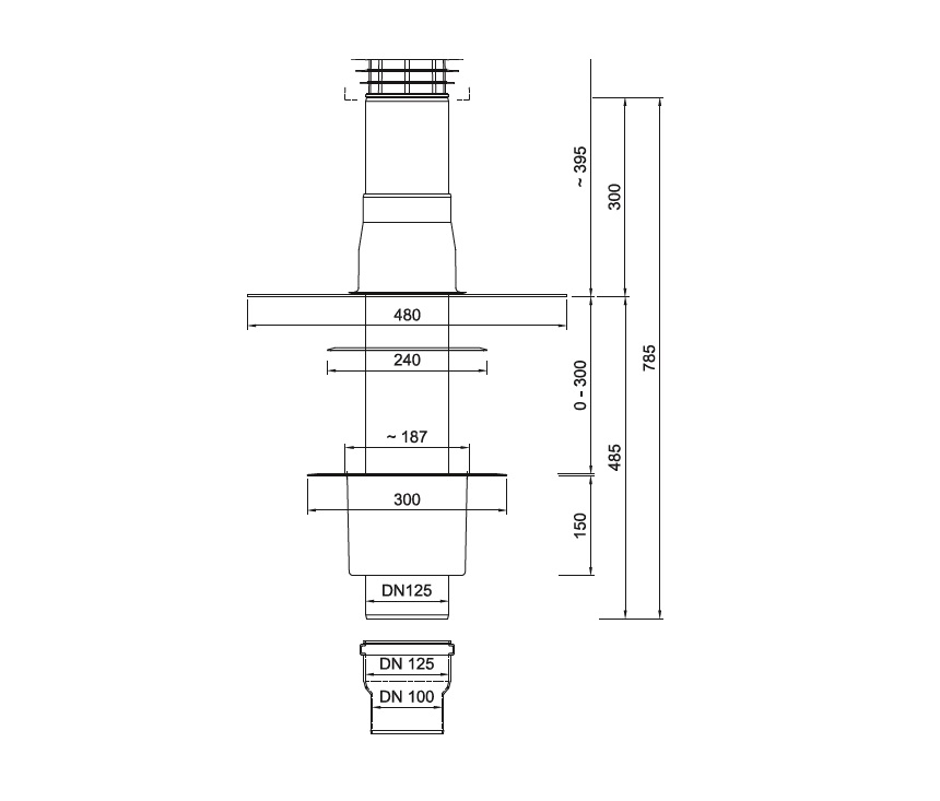
The alwitra® Shaft (Soil) Vent Pipe forms the upper end of vent pipes protruding over low slope roofs. The soil vent pipe consisting of one single pipe extends over the roof build-up without any joints and is connected to the downpipe.e below the roof structure by means of the included reducer.
As used on landmark architecture throughout the world
40 years experience with waterproofing systems in the UK
Advantages
- The connecting flange can be welded dirtectly to the corresponding roof waterproofing without any auxiliary materials.
- At the top, the soil vent pipe can be left open. Alternatively, the soil vent pipe can be covered against rain with the included vent cowl or with the optional weather cap
- The lower part made of PP and PP bead foam is installed in the supporting substructure and flashed against the vapour and wind barrier; inserting into the vent pipe ensures air-tightness
Usage
- Suitable for both warm and cold roofs
Product Details Back to top
Product Specification
| Material: | PVC pipe with vent cowl and optional weather cap made of PP |
| Colour: | black, with factory-fitted connecting flange in the colour of the waterproofing membrane |
| Height above the waterproofing (excl. cowl): | 300 mm |
| Outer pipe diameter: | 125 mm (DN 125) |
| Outer connecting flange diameter: | 480 mm |
| Outer support ring diameter: | 240 mm |
| Ø of screw holes at support ring: | 210 mm |
| Flange width support ring: | 60 mm |
| Installation opening: | Ø 190 (200) mm |
| Thermal insulation thickness: | 0 - 300 mm (or 800 mm for SL) |
| Connection diameter: | 125 mm (DN 125) and 110 mm (DN 100), 75 mm (DN 70) optional |
Technical Drawings



















